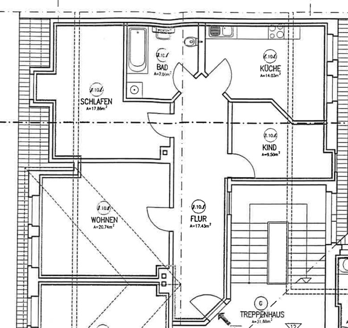
Diese großzügige 3-Raum-Wohnung mit einer Wohnfläche von 86 m² besticht durch ihre helle und freundliche Atmosphäre. Die Räume sind teilweise mit leichten Schrägen versehen, was der Wohnung einen individuellen und gemütlichen Charakter verleiht. Das Herzstück der Wohnung bildet das große Wohnzimmer, das durch seine Helligkeit zum Wohlfühlen einlädt. Neben dem Schlafzimmer steht ein weiteres Zimmer zur Verfügung, das sich ideal als Kinderzimmer oder Arbeitsbereich eignet. Die Küche ist mit einem Fliesenspiegel und einem pflegeleichten PVC-Fußboden ausgestattet. Das geräumige Badezimmer verfügt über eine Badewanne und bietet viel Komfort. In den übrigen Räumen sorgt ein Teppichboden für eine angenehme Wohnatmosphäre. Zur Wohnung gehören außerdem ein Keller und eine Bodenkammer, die zusätzlichen Stauraum bieten. Parkmöglichkeiten sind im Hinterhof vorhanden. Die Wohnung befindet sich in zentraler Lage von Oelsnitz, wodurch Einkaufsmöglichkeiten, Schulen und öffentliche Verkehrsmittel bequem erreichbar sind. Sie vereint großzügiges Wohnen mit praktischer Nähe zu allen wichtigen Einrichtungen des täglichen Lebens.
- 3-Raum - Badewanne - Keller - Bodenkammer - Fliesenspiegel
Oelsnitz/Vogtl. liegt im Südwesten des Freistaates Sachsen und im Herzen des Vogtlandes. Wer in Oelsnitz/Vogtl. wohnt findet alles, was er für das tägliche Leben benötigt. Diverse Einkaufsmöglichkeiten, Ärzte, Apotheken, Schulen und Kindergärten befinden sich in fußläuferischer Nähe. Vor allem Familien freuen sich über zahlreiche Spielplätze und gepflegte Grünflächen im Wohngebiet. Für Naturfreunde bieten angrenzende Wanderwege, Wälder und der durch Oelsnitz/Vogtl. führende Radweg zahlreiche Möglichkeiten der Freizeitgestaltung. Einen Besuch im Schloss Voigtsberg, dem Teppichmuseum Oelsnitz/Vogtl. sowie dem Freibad Elstergarten sollte man sich nicht entgehen lassen. Weiterhin besticht Oelsnitz/Vogtl. durch eine verkehrsgünstige Lage (verschiedene Busverbindungen, Bahnhof in Zentrumsnähe, BAB Anschlussstelle A72).
| Kaltmiete: | 430,00 € |
| Nebenkosten: | 280,00 € |
| Gesamtmiete: | 710,00 € |
| Kaution: | 2 Monatsmieten |
Energieausweistyp: verbrauchsorientiert
Endenergieverbrauch: 0 (kwh/m2*a)
Heizungsart: zentr. Gasheizung
Baujahr:
| Anfragen an: | Oelsnitzer Wohnungsbaugesellschaft mbH -OEWOG- |
| Telefon: | +49 (0)37421-4950 |
| E-Mail: | info@oewog.de |
